string(4) "3598"

Парогенератор 1200 кг до 130 °C / 1.7 бар на мазуте в Калининграде

Версия
для печати
В наличии на складе Цена в рублях с НДС 1 753 000
Получите скидку
у менеджера
Цена на парогенератор 1200 кг до 130 °C / 1.7 бар на мазуте с доставкой от 1 753 000 рублей с НДС
Производительность, кг/ч1200
ТопливоЖидкое, Мазут
Температура пара, не более, °C130
Давление пара, не более, МПа0.17
Доставка ТК в г. Калининград и по России
Безналичный расчет
Опросный лист
Эту продукцию можно
купить в лизинг
  • Технические
    характеристики
  • Описание
    товара
  • Комплект
    поставки
  • Дополнительно
    потребуется
  • Подключение и
    монтаж
  • Сертификаты и
    гарантии
  • Отзывы о
    продукции
  • Видео
    обзор
  • Жаротрубный комбинированный парогенератор
  • Водяной объем в 3 раза превышает паропроизводительность – это исключает температурные колебания в трубной системе и гарантирует надежную работу парогенератора даже при подпитке холодной водой
  • Паровой объем составляет до 15 % от общего объема – это обеспечивает стабильную выработку пара требуемых параметров
  • Большой водяной объем парогенератора, отсутствие горизонтальных участков в трубной системе и эффективная система дренирования позволяют минимизировать последствия выпадения солей и отложения накипи
  • Имеет систему очитки поверхностей нагрева от сажи без остановки работы
  • Работает на самотяге, дымосос не требуется даже при плюсовых температурах

Технические характеристики парогенератора на мазуте 1200 кг 130 С

Тип Парогенератор
Вид топки Горелка на мазуте
Конструкция котла Жаротрубный
Производительность, кг/ч 1200
Производительность, т/ч 1.2
Максимальная тепловая мощность, МВт 0.9
Диапазон регулирования мощности, % 40-100
Топливо Жидкое, Мазут
Низшая теплота сгорания проектного топлива, кКал/кг 9260
КПД котла на МАЗУТЕ, не менее, % 82
Расход МАЗУТА при максимальной нагрузке котла, кг/ч 96
Расход условного топлива, кг/ч 127
Температура пара, не более, °C 130
Давление пара, не более, МПа 0.17
Давление пара, не более, (кгс/см²) 1.7
Давление пара, не более, бар 1.7
Полный объем котла, м³ 3.96
Объем паровой части, м³ 0.37
Аэродинамическое сопротивление, Па (мм. вод. ст.) 38 (3.8)
Тяга Принудительная
Объем топочной камеры, м³ 2.13
Размер топочной камеры, диаметр*глубина, мм 1195х1900
Присоединительные размеры выхода пара, Ду 150
Присоединительные размеры по водяному тракту, Ду 32
Присоединительные размеры по дымовым газам / диаметр дымовой трубы, мм 450
Габаритные размеры котла, длина*ширина*высота, мм 4000х1800х2100
Масса, кг 4250
Марка STEAMEXPERT
Энергоэффективность Высокая
Бренд STEAMEXPERT

Парогенератор промышленный на мазуте 1200 кг 130 °С в Калининграде

Парогенератор на мазуте 1200 кг предназначен для выработки пара среднего давления 0.17 МПа (до 1,7 кгс/см2) и температурой до 130 °С. Парогенератор на жидком топливе 1200 кг 130 °С применяется для обработки молочной, мясной и рыбной продукции, для стерилизации тары в пищевой промышленности, при приготовлении и запаривании комбикормов в животноводстве, в пивоварении, при производстве бетона, газобетона, пенобетона, ЖБИ, при производстве фанеры, в горнодобывающей промышленности, в строительстве для разморозки инертных материалов, в деревообработке для пропарки древесины в сушильных и пропарочных камерах, при нефтедобыче и нефтепереработке, для отопления и горячего водоснабжения промышленных зданий.

На нашем заводе вы можете купить промышленные парогенераторы на всех видах топлива различных давления и температуры.

Мазутные парогенераторы 1.2 т 0.17 МПа 130 ºС на отработке марки STEAMEXPERT имеют следующие преимущества

  • Исключен вынос капель воды в технологические трубопроводы благодаря большой поверхности испарения и наличию сепаратора пара
  • Стабильная непрерывная выработка пара требуемых параметров при любой нагрузке благодаря большой паросборной камере - до 15 % от общего объема
  • Высокая скорость образования пара благодаря эффективной конвективной части котла
  • Возможность подпитки котла холодной водой +5 °С благодаря большому водяному объему и отсутствию температурных колебаний в трубной системе, работа парогенератора без экономайзера и подогревателя питательной воды
  • Повышенная надежность конструкции благодаря отсутствию неравномерных температурных расширений в жаровой трубе и трубной части теплообменника
  • Внешние поверхности нагрева очищаются паром без остановки котла
  • Внутренние поверхности нагрева не имеют горизонтальных участков и позволяют дренировать и очищать котел от выпадающего в процессе работы шлама без остановки парообразования

Парогенератор на мазуте 1200 кг 130 С устройство

Мазутный парогенератор 1200 кг 130 С представляет собой горизонтальный жаротрубный агрегат, состоящий из двух цилиндров разного размера, вставленных один в другой. Их изготавливают из листовой легированной стали, обладающей особой прочностью. Такие свойства необходимы для того, чтобы усилить защитные свойства корпуса и сделать его устойчивым к высокому давлению изнутри.

В передней части жаровой трубы находится топка, в задней конвективный пучок труб. Для предохранения от высоких температур и перегрева камеру сгорания отделяют от наружных стенок установки защитным слоем из теплоизоляционных материалов. К фронту агрегата крепится чугунная плита, на которой устанавливается горелка. Для обеспечения безопасности и с целью снижения излишне высокого давления котлоагрегат оборудуется дополнительным взрывным клапаном.

Мазутный парогенератор 1200 кг 130 С принцип работы

Горелка устанавливается с фронтовой части агрегата. Топливо через горелочное устройство подается в топочную камеру, где сгорает. Продукты сгорания нагревают воду в водяной рубашке топочной камеры, проходят через трубный пучок и выходят в его верхней части.

Трубный пучок соединяет верхнюю и нижнюю часть водяной рубашки агрегата, пар высокого давления образуется при испарении нагреваемой воды и собирается в верхней его части, в сборной камере, далее направляется на технологические нужды.

Автоматика обеспечивает безопасную работу.

Комплектация и монтаж

Парогенератор на жидком топливе мазуте 1200 кг 130 С комплектуется манометром, уровнемерной колонкой, указателем уровня, двумя предохранительными клапанами, паровыми и продувочными вентилями, приборами КИП. Питательный насос поставляется отдельно.

Агрегат поставляется блоком максимальной заводской готовности. Блок устанавливается на специально подготовленную ровную поверхность.

Подсоединяется по воде, устанавливается запорная арматура на подводящем трубопроводе и отводящем паропроводе, устанавливаются предохранительные клапаны и контрольно-измерительные приборы. В случае необходимости делается изоляция котлоагрегата. Подключается автоматика.

Купить парогенератор на мазуте 1200 кг 130 С

Купить парогенератор на мазуте 1200 кг 130 С в Калининграде вы можете в нашем электронном магазине, прислав заявку на наш электронный адрес, также вы можете оформить заявку онлайн или позвонить по телефону 8-800-700-17-43. Доставка осуществляется транспортными компаниями по всей России и Казахстану.

Дополнительное вспомогательное оборудование для работы парогенератора на мазуте 1200 кг 130 С

Для эффективной и надежной работы парогенератора на мазуте 1200 кг 130 С в вашей котельной вам потребуется дополнительное оборудование - автоматика ЩУК, горелка импортного или отечественного производства, насос сетевой и подпиточный, регулятор давления газа (по необходимости), газоходы и переходники для газового тракта, дымовая труба. Мы предлагаем рассмотреть типовые варианты комплектации.

В случае если у вас на объекте уже имеется насосное и горелочное оборудования, мы можем проверить совместимость парогенератора на мазуте 1200 кг 130 С нашего производства и вашего оборудования.

Для проверки соответствия подпиточной воды для котлоагрегата требованиям к питательной воде, направьте нам химический анализ воды, в случае необходимости ее корректировки мы предложим вам систему водоподготовки котловой воды.

Можем изготовить нестандартные узлы для выполнения быстрого монтажа котла - газоходы и узлы обвязки.

Типовую схему монтажа котла вы можете посмотреть во вкладке схемы подключения и монтаж.

Автоматика выполняет следующие функции:

  • ручной пуск и автоматическую остановку котла;
  • аварийную остановку котла с индикацией причины аварии и подачей звукового сигнала;
  • исключает пуск парового котла при выходе за пределы аварийных параметров;
  • автоматически поддерживает заданное давление в барабане котла;
  • осуществляет контроль рабочего уровня воды в барабане котла между отметками верхнего и нижнего рабочего уровня;
  • автоматически производит пуск/остановку питательного насоса и световую индикацию о критически низком (упуск) или критически высоком (перелив) уровне воды;
  • отключает подачу топлива в случае погасания факела в топке котла.
Цена 168 000 рублей с НДС
  • Работают в одно-, двух-, трехступенчатом и модуляционном режиме.
  • Основной вид топлива - мазут, так же возможна работа на дизельном топливе.
  • Применяется со всеми типами камеры сгорания.
  • Распыление топлива механическое, при помощи форсунки, с высоким давлением.
  • Полное сжигание топлива обеспечивается с помощью регулирования соотношения количества воздуха и топлива.
  • Конструкция топливного узла специально разработана для топлива с высоким показателем вязкости и обеспечивает циркуляцию топлива во время продувки горелки.
  • Регулирование расхода воздуха при минимальном и максимальном режиме работы, обеспечивается электрическим сервоприводом. Автоматическое перекрытие доступа воздуха в топку при остановке работы горелки.
  • Горелка оборудована крепёжным фланцем и уплотнительной прокладкой, а также гибкими топливными шлангами, и форсунками.

Используется в качестве питательного насоса в производственных паровых котельных

Цена 33 800 рублей с НДС

Разрабатывает индивидуально на основе химического анализа воды потеребителя

Производим газоходы по индивидуальному заказу согласно схеме компоновки котельной. Системы газоходов могут включать в себя:

  • шиберы;
  • газоходы различного сечения;
  • переходы;
  • тройники;
  • карманы всасывающие дымососов.

Схемы подключения и монтаж парогенератора на мазуте 1200 кг 130 С

Жаротрубный парогенератор 1200 кг до 130 °C / 1.7 бар на мазуте, предназначен для получения насыщенного пара для технологических целей в производстве. Устанавливается в производственных и промышленных котельных.

Схема подключения и монтажа
Смотреть
Скачать

Схема подключения и монтажа

Монтаж парогенератора на мазуте 1200 кг 130 С в котельной должен производиться в соответствии с проектом и с учетом требований Свода правил СП 89.13330. 2016 «Котельные установки» и «Правила промышленной безопасности при использовании оборудования, работающего под избыточным давлением, утверждены приказом Федеральной службы по экологическому, технологическому и атомному надзору от 15 декабря 2020 года N 536». Правильный монтаж котла – залог его надежной и долгой работы.

Чтобы правильно подключить парогенератор 1200 кг до 130 °C / 1.7 бар на мазуте в котельной необходимо оставить проемы для обслуживания оборудования во время эксплуатации. На представленной здесь схеме обозначены их размеры. Кроме того, в данной примерной схеме монтажа паровых котлов и оборудования указан перечень минимально необходимого вспомогательного оборудования.

К вспомогательному оборудованию при подключении промышленного парового котла относят - щит управления котлом, питательные насосы (1 рабочий, 2 резервный), бак запаса воды, горелочное устройство, охладитель проб отбора воды, систему водоподготовки котловой воды, дымовую трубу, систему газоходов (по проекту).

В случае если подпиточная вода не соответствует по своим характеристикам требованиям к питательной воде, необходимо предусмотреть систему водоподготовки котловой воды.

Система питания котла
Смотреть
Скачать

Система питания парогенератора на мазуте 1200 кг 130 С

При работе котла питание водой парогенератора на мазуте 1200 кг 130 С производится через штуцер.

Подпитка котла ведется из питательного бака через насос, соединительную арматуру. На трубопроводе подпитки котла водой должно быть установлено запорное устройство и обратный клапан. Запорное устройство должно располагаться между котлом и обратным клапаном.

Для подпитки устанавливается не менее двух насосов с электроприводом. На стороне нагнетания каждого центробежного насоса до запорного органа должен быть установлен обратный клапан.

На трубопроводе выдачи пара, в непосредственной близости от котла, устанавливается запорное устройство.

На котле имеются продувочные штуцера Ду25, Ду15 и Ду10. Штуцер Ду25 предназначен для удаления шлама, образующегося в результате работы котла, периодической продувки котловой воды и для спуска воды в случае необходимости. Штуцер Ду15 предназначен для продувки водомерной колонки. Штуцера Ду10 предназначены для продувки указателей уровня.

В передней части жаровой трубы в верхней части установлена легкоплавкая пробка – предохранительное устройство прямого действия.

На боковой части корпуса устанавливается датчик уровней воды, связанный с паровым и водным пространством котла соединительными трубками не менее Ду25.

На боковой части корпуса устанавливается соединительная труба (колонка), служащая для установки двух указателей уровня, и связанная с паровым и водным пространством котла соединительными трубками не менее Ду25.

На боковой части корпуса внизу у котла имеется ревизия с крышкой, для периодического осмотра состояния поверхностей нагрева со стороны водяного объема.

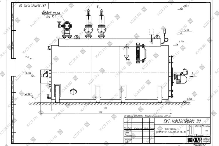
Схема парогенератора на мазуте 1200 кг 130 С
Смотреть
Скачать

Схема парогенератора на мазуте 1200 кг 130 С

В передней части жаровой трубы размещена топка, а в задней части - конвективный пучок труб.

В верхней части котла приварен паросборник, представляющий собой полуцилиндр. На паросборной камере устанавливаются предохранительные клапаны и два штуцера Ду15, один для установки электроконтактного манометра, второй для спуска воздуха с котла при заполнении водой при подготовке к работе.

К фронтовой плите котла крепится жидкотопливная горелка для подачи топлива в топку котла через амбразуру.

На задней крышке в основании дымовой трубы выполнен предохранительный взрывной клапан.

Образующиеся в топочной камере продукты сгорания проходят конвективный пучок труб и выводятся через трубу дымовую, установленную на корпусе в хвостовой части котла.

Отвод пара парогенератора на мазуте 1200 кг 130 С
Смотреть
Скачать

Отвод пара парогенератора на мазуте 1200 кг 130 С

Предохранительные клапаны предназначены для стравливания давления в котле при превышении допустимого значения. На котле установлены предохранительные клапаны пропускной способностью не менее часовой производительности котла.

Принцип работы клапана состоит в том, что при достижении паром номинального давления избыток пара выходит наружу. Клапана оборудованы ручным приводом для открывания при проверке их на срабатывание.

Щит управления совместно с электрооборудованием предназначен для управления работой парогенератора на мазуте 1200 кг 130 С и защиты его при возникновении аварийных ситуаций. На двери щита расположены сигнальная лампа и органы управления работой котла, с табличками, указывающими их назначение. По месту либо на стенке щита крепится сигнальная сирена.

На паросборной камере устанавливается один электроконтактный манометр. При монтаже манометра, показывающего давление пара в котле, должна быть предусмотрена установка трехходового крана между манометром и сифонным устройством. Допускается установка других устройств, позволяющих контролировать показания рабочего манометра, путем подключения в систему контрольного манометра. Электроконтактный манометр выполняет роль датчика давления и предназначен для отключения дутьевого вентилятора и включения аварийной сигнализации при достижении паром предельно допустимого давления.

Датчик уровней служит для подачи команды на включение и отключение питательного насоса котла в процессе работы.

Указатель уровня воды предназначен для визуального контроля за уровнем воды при работе котла. На корпусе указателя крепится рамка или наносятся метки, указывающие верхний и нижний уровень воды.

Легкоплавкая пробка предназначена для сброса пара во внутренний объем топочной камеры в случае упуска воды ниже аварийного уровня и достижения фактического уровня воды на работающем котле ниже верхней кромки жаровой трубы. При этом легкоплавкая пробка перестает охлаждаться котловой водой и нагревается до температуры газов в топочной камере. Из-за нагрева наполнитель легкоплавкой пробки плавится и выдавливается давлением пара в топочную камеру, при этом сбрасывается давление пара и дополнительно гасится пламя.

Дополнительные услуги

Сертификат и качество парогенератора на мазуте 1200 кг 130 С

Парогенераторы производства Котельный завод "РЭП" соответствуют строгим стандартам качества и безопасности. Завод производит парогенераторы в соответствии с требованиями ГОСТ 30735-3001 по Техническим Условиям завода.

Котлы имеют сертификаты соответствия Техническим регламентам Таможенного союза:

  • ТР ТС 032/2013 - «О безопасности оборудования, работающего под избыточным давлением».

Энергоэффективный парогенератор 1200 кг до 130 °C / 1.7 бар на мазуте имеет гарантийный срок 24 месяца и срок работы при соблюдении правил монтажа и эксплуатации оборудования 10 лет.

Сертификат на котлы паровые Е .jpg
Сертификат на паровые котлы Е
Товарный знак на котлы паровые STEAMEXPERT .jpg
Товарный знак на паровые котлы STEAMEXPERT

Отзывы о продукции

Отзыва о товаре пока нет, будьте первыми!

Промышленные парогенераторы 1200 кг на мазуте предназначены для выработки пара среднего давления 1,2 - 0,17 МПа (до 1,7 кгс/см2) и температурой до 130 °С Котельный завод производит котлы паровые мощностью от 300 кг пара в час до 2,5 т пара в час на всех видах топлива, а так же весь перечень сопутствующего котельного оборудования - насосы, автоматику, водоподготовку и прочее.

Смотреть видеообзор на

Вопрос-ответ

  • Технические
    характеристики
  • Описание
    товара
  • Комплект
    поставки
  • Дополнительно
    потребуется
  • Подключение и
    монтаж
  • Сертификаты и
    гарантии
  • Отзывы о
    продукции
  • Видео
    обзор
Документы завода
  • Сертификаты завода
  • Членство в СРО
  • Аттестованная технология сварки
  • Патенты на котельное оборудование
  • Товарные знаки
Смотреть все документы
Сертификат на водогрейные котлы на твердом и жидком топливе
Сертификат на водогрейные котлы на газе и жидком топливе
Сертификат на котлы отопительные паровые КП
Сертификат на топки
Сертификат на щиты управления
Сертификат на скиповые подъемники
Сертификат на золоуловители (циклоны)
Сертификат на конвейеры скребковые
Сертификат на дробилки
Сертификат на клапаны предохранительные
Сертификат на бункер-накопитель механизированный
Сертификат на автоматику газовых горелок
Сертификат о происхождении товара форма СТ-1
Членство в СРО
Членство в СРО
Аттестованная технология сварки
Свидетельство аттестованной технологии сварки
Патент на отопительный котел
Патент на водогрейный котел
Патент на топку водогрейного котла
Патент на водогрейный газовый котел
Патент на водогрейный котел
Патент на топочное устройство твердотопливного котла
Патент на водогрейный котел
HEATEXPERT товарный знак
KVZR товарный знак
STEAMEXPERT товарный знак
Другая похожая продукция
Парогенератор 1200 кг температура 130 С на газе
Лизинг
Производительность, кг/ч1200
ТопливоГаз
Температура пара, не более, °C130
Давление пара, не более, МПа0.17
1 348 000 р. Цена с НДС
Парогенератор 1200 кг температура 130 С на дизеле
Лизинг
Производительность, кг/ч1200
ТопливоЖидкое, Дизель
Температура пара, не более, °C130
Давление пара, не более, МПа0.17
1 348 000 р. Цена с НДС
Парогенератор 1000 кг в час на мазуте
Лизинг
Производительность, кг/ч1000
ТопливоЖидкое, Мазут
Температура пара, не более, °C130
Давление пара, не более, МПа0.17
1 536 000 р. Цена с НДС
Парогенератор 1500 кг в час на мазуте
Лизинг
Производительность, кг/ч1500
ТопливоЖидкое, Мазут
Температура пара, не более, °C130
Давление пара, не более, МПа0.17
1 881 000 р. Цена с НДС
Вы просматривали эти товары
Парогенератор 1200 кг в час на мазуте
Лизинг
Производительность, кг/ч1200
ТопливоЖидкое, Мазут
Температура пара, не более, °C130
Давление пара, не более, МПа0.17
1 753 000 р. Цена с НДС
Парогенератор 300 кг в час на мазуте
Лизинг
Производительность, кг/ч300
ТопливоЖидкое, Мазут
Температура пара, не более, °C130
Давление пара, не более, МПа0.17
855 000 р. Цена с НДС
Парогенератор 2500 кг в час на мазуте
Лизинг
Производительность, кг/ч2500
ТопливоЖидкое, Мазут
Температура пара, не более, °C130
Давление пара, не более, МПа0.17
2 615 000 р. Цена с НДС
Парогенератор 500 кг в час на отработке
Лизинг
Производительность, кг/ч500
ТопливоЖидкое, Отработанное масло
Температура пара, не более, °C170
Давление пара, не более, МПа0.9
1 140 000 р. Цена с НДС
background