string(4) "1772"

Транспортер СКИП 1600 в Калининграде

Версия
для печати
В наличии на складе Цена в рублях с НДС 852 500
Получите скидку
у менеджера
Цена на транспортер СКИП 1600 с доставкой от 852 500 рублей с НДС
Доставка ТК в г. Калининград и по России
Безналичный расчет
Опросный лист
Эту продукцию можно
купить в лизинг
  • Технические
    характеристики
  • Описание
    товара
  • Сертификаты и
    гарантии
  • Отзывы о
    продукции
  • Видео
    обзор

Технические характеристики транспортера СКИП 1600

Тип Скиповый подъемник
Марка Транспортер СКИП 1600
Грузоподъемность, кг 1600
Емкость ковша, м³ 1.2
Скорость перемещения ковша, м/с 0.16
Высота подъема груза, м 15
Угол наклона, ° 70/75/90
Средняя плотность материала, кг/м³ 1300
Рабочая температура, °С от -45 до +60
Бренд KVZR

Транспортер СКИП 1600 в Калининграде

Транспортер СКИП 1600  предназначен для подъема насыпных грузов в наклонном и вертикальном направлениях в ковше (скипе). Транспортер СКИП 1600 должен быть изготовлен в климатическом исполнении УХЛ1 по ГОСТ 15150.

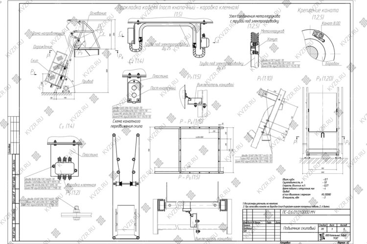
Устройство транспортера СКИП 1600

Транспортер СКИП 1600 представляет собой устройство, собранное последовательно основание – опорной рамы предназначено для передачи нагрузки от веса подъемника и поднимаемого груза на опорную поверхность, направляющей – рамы с полозьями для движения в них ковша (скипа), скипа – ковша для загрузки в него и подъема в нем сыпучего материала, ограждений для ограничения доступа к движущимся элементам подъемника, привода – силового агрегата с тормозом осуществляющего перемещение ковша по направляющей с помощью канатной тяги, в крайних положениях ковша устанавливаются концевые выключатели для ограничения перемещения ковша и автоматизации приема крайних положений в ходе рабочего цикла.

Транспортер СКИП 1600 оснащен:

  • грузоподъемным механизмом - основанием, направляющей, ковшом и ограждениями;
  • приводом;
  • элементами управления - щитом управления, постом кнопочным, концевыми выключателями (по согласованию с заказчиком).

Конструкцией подъемников должно обеспечиваться удобство обслуживания, регулирования узлов, а так же проведение ремонтных работ.

Комплект поставки СКИП 1600

В комплект поставки транспортера СКИП 1600 должны входить:

  • основание;
  • направляющая;
  • ограждения (левое и правое);
  • ковш (скип);
  • привод;
  • трос (канат);
  • элементы управления - щит управления, пост кнопочный, концевые выключатели (по согласованию с заказчиком);
  • опорно-каркасные элементы (по согласованию с заказчиком);
  • вспомогательные приспособления и инструменты в соответствии с ведомостью ЗИП.

Поставка транспортера СКИП 1600 производится в разобранном виде.

СКИП 1600 транспортируют транспортом всех видов в соответствии с правилами перевозки грузов, действующими на транспорте данного вида.

Монтаж транспортера СКИП 1600

Монтаж, эксплуатация и техническое обслуживание подъемника должно осуществляться в соответствии с "Техническим описанием, инструкцией по монтажу, эксплуатации и обслуживанию" предприятия-изготовителя, настоящими техническими условиями, а также "Инструкцией для персонала предприятия".

Наша организация осуществляет проектирование транспортеров в соответствии с техническим заданием Заказчика.

Купить транспортер СКИП 1600

Для того чтобы купить транспортер СКИП 1600 в Калининграде, вы можете сделать заявку в отдел сбыта по телефону (38-52) 29-97-41 (42), либо оформить заявку онлайн. Наши менеджеры дадут консультацию по подбору вспомогательного оборудования для выбранных вами моделей и рассчитают стоимость доставки до вашего региона и населенного пункта.

Дополнительные услуги

Сертификат на скиповые подъемники .jpg
Сертификат на скиповые подъемники

Отзывы о продукции

Отзыва о товаре пока нет, будьте первыми!

Транспортеры СКИП применяются для перемещения угля в вертикальном и круто наклонном положении, с места хранения угля в бункер водогрейного котла, в стационарных котельных, модульных котельных МКУ и транспортабельных котельных КМТ.

Смотреть видеообзор на

Вопрос-ответ

  • Технические
    характеристики
  • Описание
    товара
  • Сертификаты и
    гарантии
  • Отзывы о
    продукции
  • Видео
    обзор
Документы завода
  • Сертификаты завода
  • Членство в СРО
  • Аттестованная технология сварки
  • Патенты на котельное оборудование
  • Товарные знаки
Смотреть все документы
Сертификат на водогрейные котлы на твердом и жидком топливе
Сертификат на водогрейные котлы на газе и жидком топливе
Сертификат на котлы отопительные паровые КП
Сертификат на топки
Сертификат на щиты управления
Сертификат на скиповые подъемники
Сертификат на золоуловители (циклоны)
Сертификат на конвейеры скребковые
Сертификат на дробилки
Сертификат на клапаны предохранительные
Сертификат на бункер-накопитель механизированный
Сертификат на автоматику газовых горелок
Сертификат о происхождении товара форма СТ-1
Членство в СРО
Членство в СРО
Аттестованная технология сварки
Свидетельство аттестованной технологии сварки
Патент на отопительный котел
Патент на водогрейный котел
Патент на топку водогрейного котла
Патент на водогрейный газовый котел
Патент на водогрейный котел
Патент на топочное устройство твердотопливного котла
Патент на водогрейный котел
HEATEXPERT товарный знак
KVZR товарный знак
STEAMEXPERT товарный знак
Другая похожая продукция
Вы просматривали эти товары
852 500 р. Цена с НДС
Цена по запросу
Циклон УЦ
МаркаУЦ
Диаметр, мм1300
Производительность циклона, м³/ч4580-6100
143 000 р. Цена с НДС
Котел 0.3 с ОУР
Вид топкиРучная, ОУР
Максимальная тепловая мощность, МВт0.3
ТопливоТвердое, Уголь
Отапливаемая площадь, м²2300-3300
436 000 р. Цена с НДС
background